



设计感言
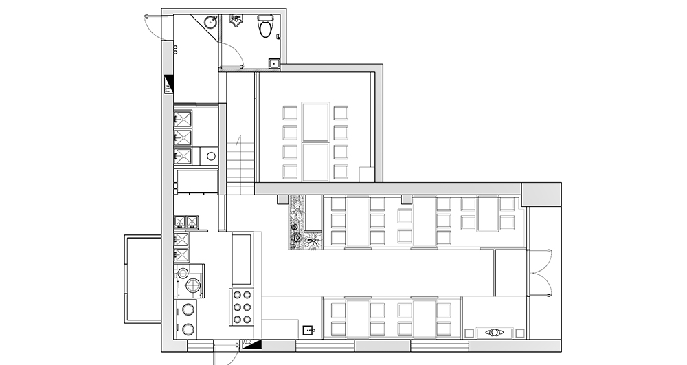
项目名称:东经117°餐饮空间设计项目 项目设计时间: 2019年4月 项目完工时间: 2019年6月 项目地点:北京市西城区鼓楼西大街 项目面积:125平方米 工程造价:32万元 本项目位于鼓楼附近,靠近皇城根,定位为会所接待性质。整体采用禅意风格,融入枯山水、木格栅、竹子等元素,照明上采用局部照明手法,增强明暗对比,凸显神秘静谧感。




项目名称:东经117°餐饮空间设计项目 项目设计时间: 2019年4月 项目完工时间: 2019年6月 项目地点:北京市西城区鼓楼西大街 项目面积:125平方米 工程造价:32万元 本项目位于鼓楼附近,靠近皇城根,定位为会所接待性质。整体采用禅意风格,融入枯山水、木格栅、竹子等元素,照明上采用局部照明手法,增强明暗对比,凸显神秘静谧感。