






设计感言
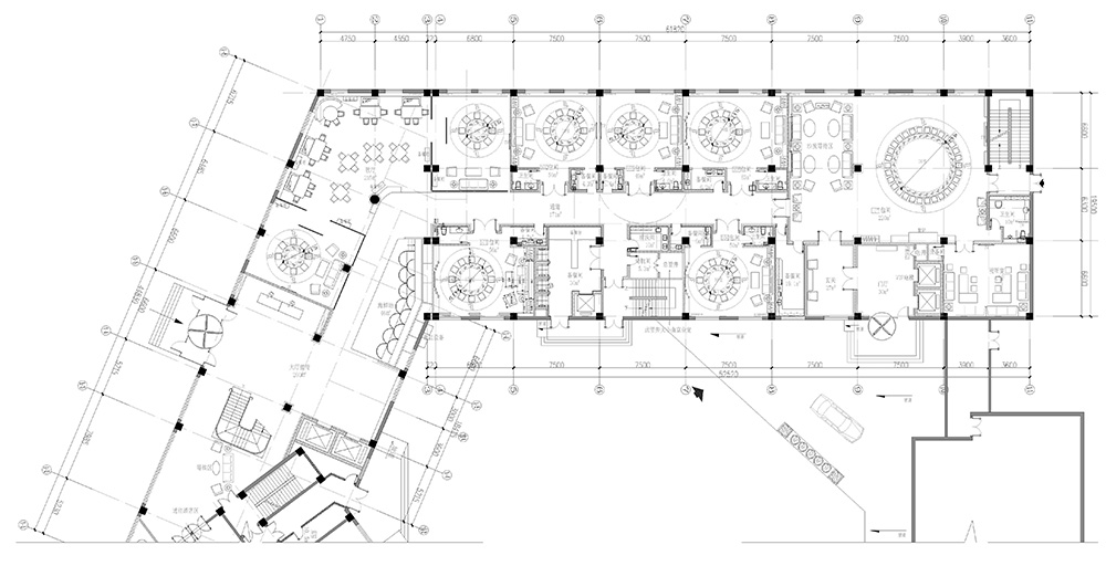
在设计中运用了暖色系列的色调,给顾客一种亲切、温馨的感觉,在色调的烘托下,使装饰造型更显大气、简约,功能设计更人性化。 项目名称:海德餐厅 设计风格:新中式风格 项目地点:呼和浩特 建筑面积:3500㎡左右 主要材料:木饰面、木纹砖、皮革、不锈钢条







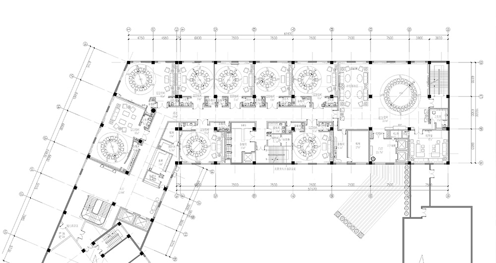
在设计中运用了暖色系列的色调,给顾客一种亲切、温馨的感觉,在色调的烘托下,使装饰造型更显大气、简约,功能设计更人性化。 项目名称:海德餐厅 设计风格:新中式风格 项目地点:呼和浩特 建筑面积:3500㎡左右 主要材料:木饰面、木纹砖、皮革、不锈钢条